Bonita vivienda VPO en el centro de Béjar
Bejar - REF. 1198
95 m2 3 2 1 1
venta: 61.300 €
Descripción

Vía de la Plata Inmobiliaria presenta esta bonita vivienda VPO en pleno centro de Béjar, ubicada en la calle Víctor Gorzo, a pocos metros de la Plaza Mayor, en un edificio con ascensor y sin barreras arquitectónicas.

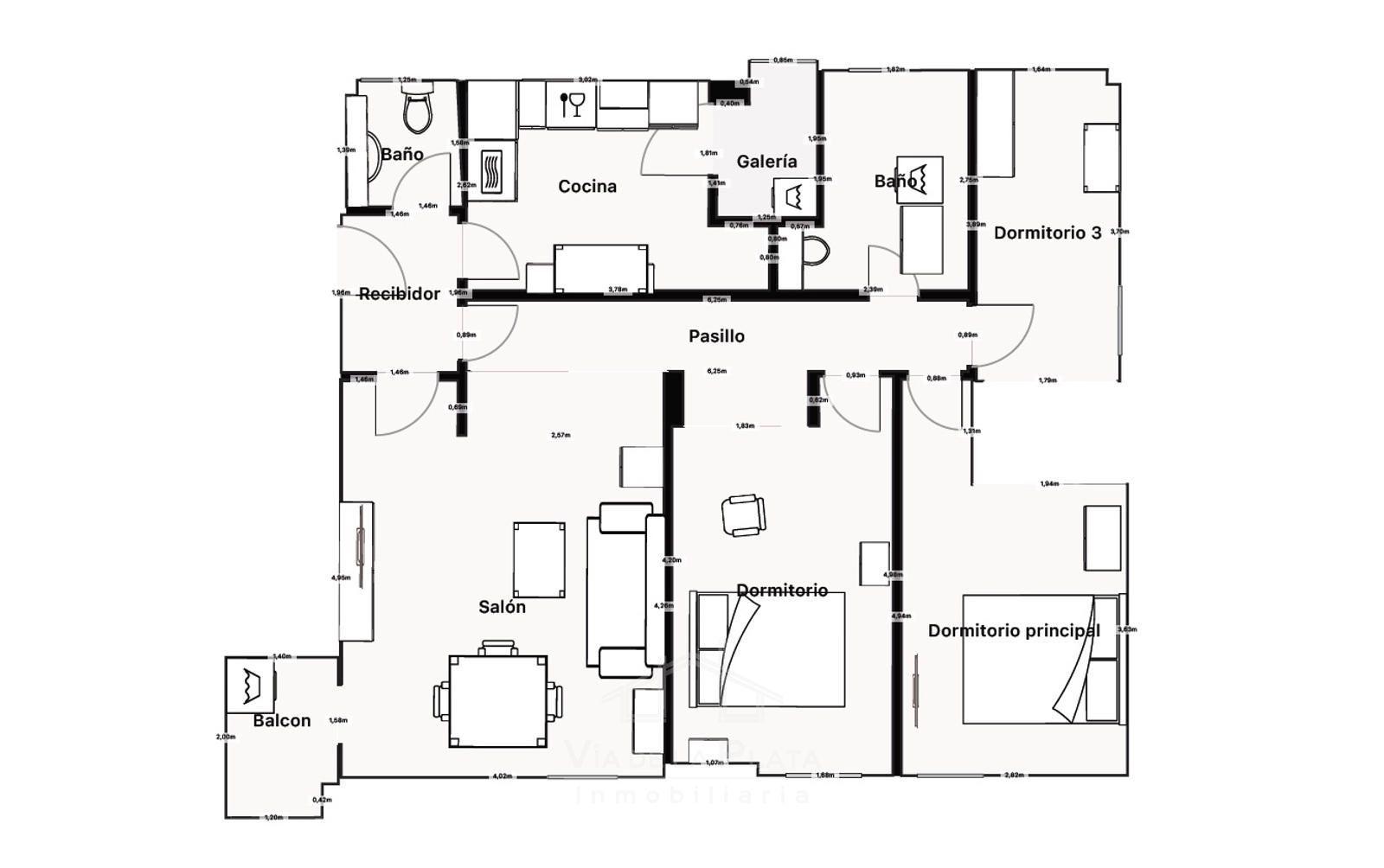
La vivienda, situada en una primera planta, cuenta con 105 m² construidos aproximadamente y se distribuye de la siguiente manera:

Al acceder, encontramos un recibidor con distribuidor que da paso a un aseo, una amplia cocina completamente equipada con salida a galería y vistas despejadas, y un gran salón con balcón exterior y vistas a la calle principal.

Desde el pasillo accedemos a la zona de descanso, con dos armarios empotrados ideales como roperos o almacenaje adicional, un baño completo con plato de ducha y ventana, un dormitorio doble con armario empotrado y exterior, un dormitorio individual también con armario empotrado, y un dormitorio principal doble, igualmente exterior y luminoso.

🛠️ Construido en 2008, el inmueble dispone de calefacción individual de gas natural, suelo de tarima, y ventanas de aluminio. Además, incluye un trastero de 4 m² y una plaza de garaje amplia en el mismo edificio, apta para cualquier vehículo.

El piso se encuentra en perfecto estado, listo para entrar a vivir y disfrutar de todas las comodidades de una vivienda moderna, amplia y bien ubicada.

📍 Sobre la zona: Béjar (Salamanca)

Béjar es una localidad histórica y acogedora situada al sur de la provincia de Salamanca, rodeada de montañas, naturaleza y rutas de senderismo. Destaca por su patrimonio cultural, su cercanía a la estación de esquí de La Covatilla y su excelente calidad de vida.

La vivienda se sitúa en pleno centro urbano, con todos los servicios a pie de calle: comercios, colegios, bancos, restaurantes y zonas verdes.

🔍 ¿Quién puede optar a esta vivienda VPO?

✅ Requisitos personales:

• Ser mayor de edad y tener capacidad legal para contratar.

• No haber renunciado a una VPO en los últimos 2 años.

• Destinar la vivienda a uso habitual y permanente.

💰 Requisitos económicos (según IPREM 2025):

• IPREM mensual: 600 € | Anual (12 pagas): 7.200 € | Anual (14 pagas): 8.400 €

👉 Ingresos entre 1 y 3,5 veces el IPREM, es decir, de 7.200 € a 25.200 € anuales aprox.

🚫 No podrás optar si:

• Ya eres propietario o usufructuario de otra vivienda libre o protegida (salvo excepciones).

• Excedes los límites de ingresos establecidos.

📝 Cómo inscribirte:

Debes figurar en el Registro de Demandantes de Vivienda Protegida de Castilla y León.

📎 Más información y formularios en:

➡️ vivienda.jcyl.es

➡️ aytobejar.com

Características
Precio Venta 61.300 €
Precio/m² 645 €/m²
Gastos de comunidad 45 €
Año de construcción 2008
Construidos 95 m2
Dormitorios 3
Baños 2
Cocina Amueblada
Calefacción Calefacción individual - Gas Natural
Trastero
Terraza
Altura/Planta 1
Estado Buen estado
Tipo de suelo Tarima flotante
Ascensor
Garaje
Adaptado
Calificación Energética En trámite
Luz
Gas
Agua
Acceso discapacitados
Vídeos
Ubicación
Escalas de eficiencia



Contacta con tu asesor
José Luis Díaz
Contáctanos

Si deseas más información sobre esta propiedad, por favor, rellena el formulario.

 Sí, he leído y/o acepto las Condiciones de uso y la Política de privacidad
Agencia asociada a la Asociación Inmobiliarias de Salamanca