Topas
Casa con parcela urbana de 1.242 m² y 330 m² construidos en Topas
Topas - REF. 1224
330 m2 3 1 2
venta: 135.000 €
antes: 150.000 €
Descripción

🏡 Activo inmobiliario con vivienda, anexos y terreno

Vía de la Plata Inmobiliaria presenta esta propiedad en Topas, compuesta por vivienda en planta baja, construcciones auxiliares y una amplia parcela urbana.

Según Catastro:

• 🏠 330 m² construidos

• 🌳 1.242 m² de parcela urbana

Una combinación poco habitual que permite múltiples enfoques: vivienda, reforma integral o desarrollo.

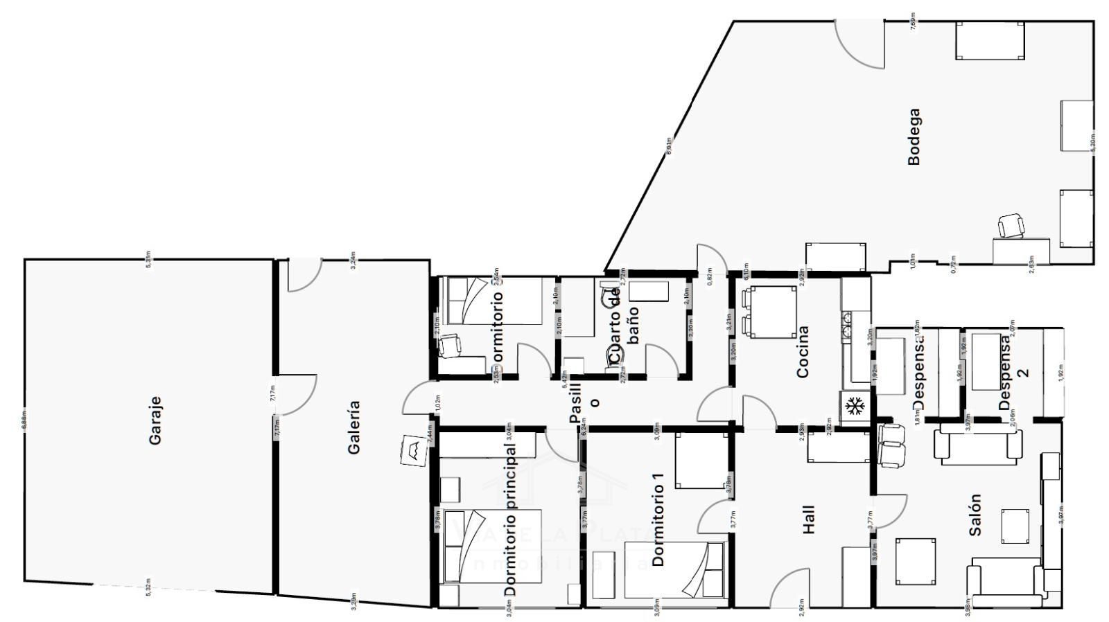
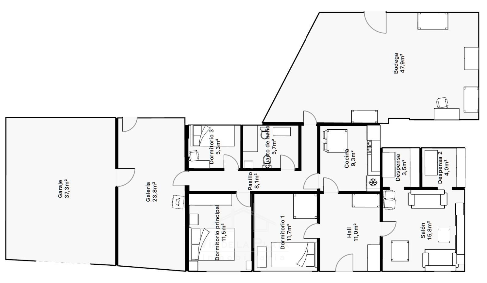
🏡 Distribución de la vivienda (según plano)

La vivienda se organiza en planta baja con una distribución clara:

Zona principal

✅ Salón de aproximadamente 15,8 m²

✅ Cocina independiente (9,3 m²)

✅ Hall de entrada (11 m²)

✅ Dos despensas (3,5 m² y 4 m²)

Zona de descanso

✅ Dormitorio principal (11,5 m²)

✅ Segundo dormitorio (11,7 m²)

✅ Tercer dormitorio (5,3 m²)

✅ Baño completo (5,7 m²)

✅ Pasillo distribuidor (8,1 m²)

Espacios anexos interiores

Uno de los grandes valores de la propiedad:

✅ Galería de 23,8 m²

✅ Bodega de 47,9 m²

✅ Garaje de 37,3 m² con acceso directo desde la calle

👉 Estos espacios multiplican el potencial de uso: ampliación, segunda vivienda, zona de ocio, etc.

🌳 Parcela urbana: 1.242 m²

La propiedad cuenta con una parcela urbana completa, lo que permite:

✅ Jardín o zona de recreo

✅ Huerto

✅ Ampliaciones

✅ Nueva edificación

✅ Alta privacidad

Un activo muy interesante tanto para particular como para inversor.

💧 Elementos adicionales

✅ Pozo propio

✅ Antiguas cuadras con acceso al terreno

✅ Zona de lavandería

✅ Conexión directa entre vivienda, garaje y parcela

🔧 Estado de la vivienda

La vivienda:

✅ Ha tenido mejoras

❗ Requiere actualización

❌ No dispone actualmente de calefacción

👉 Esto permite rediseñarla completamente y adaptarla a un proyecto actual.

📍 Ubicación

Situado en Topas (Salamanca), en entorno tranquilo y bien comunicado.

Características de la zona:

✅ Municipio con servicios básicos

✅ Entorno rural agradable

✅ Buena conexión con Salamanca

✅ Acceso cercano a N-630 y A-66

Ideal para quienes buscan espacio, tranquilidad y calidad de vida.

Conclusión

No es solo una vivienda.

Es un activo que combina:

✅ 330 m² construidos

✅ 1.242 m² urbanos

✅ Vivienda + garaje + bodega + almacenes

✅ Potencial de reforma o desarrollo

✅ Versatilidad total

Una propiedad con muchas posibilidades reales en el mercado actual.

Características principales

🏡 Tipo de inmueble: Casa en planta baja

📐 Parcela: 1.242 m² (urbana)

🏠 Construidos: 330 m²

🛏 Dormitorios: 3

🚿 Baños: 1

🚗 Garaje: 37,3 m²

🍷 Bodega: 47,9 m²

🧱 Galería: 23,8 m²

💧 Pozo propio

🏚 Cuadras

🔥 Calefacción: no dispone

🔧 Estado: requiere actualización

📍 Ubicación: Topas

Características
Precio Venta 135.000 €
Precio/m² 409 €/m²
I.B.I. 200 €
Año de construcción 1970
Construidos 330 m2
Útiles 240 m2
Parcela 1.242 m2
Dormitorios 3
Baños 1
Amueblado
Cocina Amueblada
Calefacción No tiene
Trastero
Estado Buen estado
Tipo de suelo Baldosa
Garaje
Adaptado
Calificación Energética En trámite
Luz
Agua
Acceso discapacitados
Vídeos
Ubicación
Escalas de eficiencia



Contacta con tu asesor
José Luis Díaz
Contáctanos

Si deseas más información sobre esta propiedad, por favor, rellena el formulario.

 Sí, he leído y/o acepto las Condiciones de uso y la Política de privacidad
Inmuebles similares:
 
144.000 €
Ref. 1208  215 m2  3  1

🌿 Finca rústica de más de 20.000 m² con vivienda reformada.

🏡 Casa independiente con 3 dormitorios, porche acristalado, garaje y almacén.

🌾 Entorno natural, praderas y total tranquilidad.

📍 En La Fuente de San Esteban.

Ideal como segunda residencia o vida rural.

Agencia asociada a la Asociación Inmobiliarias de Salamanca