Sta. Marta de Tormes
Ático en venta en Santa Marta con piscina privada y garaje
Santa Marta De Tormes - REF. 1220
120 m2 60 m2 4 2 1 4
venta: 215.000 €
Descripción

Un ático diferente: luz, privacidad y exclusividad

Vía de la Plata Inmobiliaria presenta este ático único en Santa Marta de Tormes, una vivienda que destaca por su concepto arquitectónico, su distribución y, sobre todo, por sus espacios exteriores privados.

Un inmueble pensado para quienes valoran la tranquilidad, la independencia y un estilo de vida exclusivo.

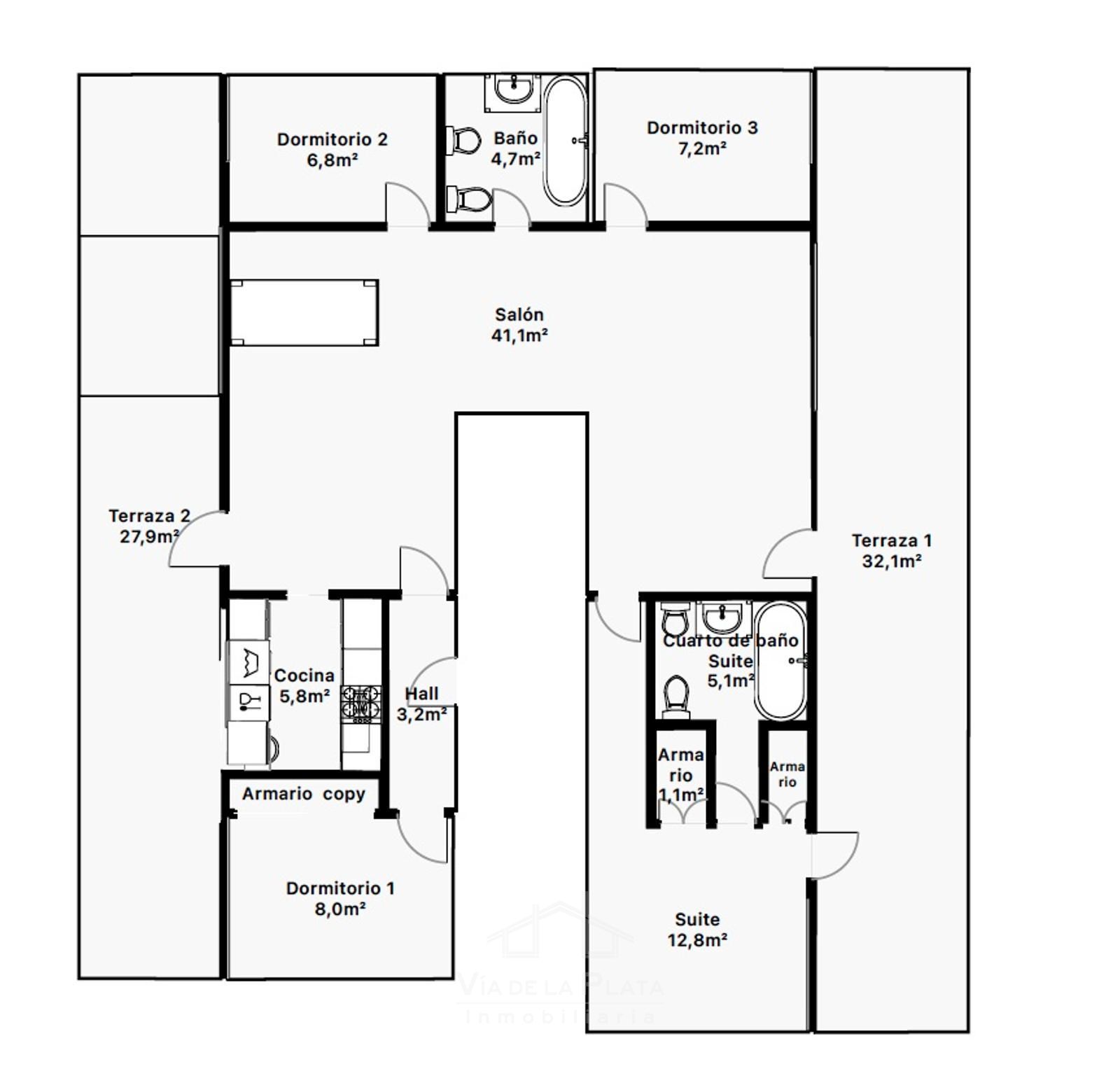
🏡 Distribución de la vivienda

La vivienda cuenta con una distribución funcional y bien diferenciada:

✅ 4 dormitorios

✅ 2 baños completos

El salón presenta una estructura en forma de U, generando distintos ambientes, e incorpora una mesa de piedra en el comedor de obra, aportando carácter y personalidad.

🌿 Terrazas (el gran valor de la vivienda)

La vivienda dispone de dos terrazas de aproximadamente 30 m², orientadas al este y oeste, lo que permite disfrutar de luz natural durante todo el día.

✨ Una de las terrazas cuenta con piscina privada

Un espacio único donde:

✅ Disfrutar de absoluta privacidad

✅ Crear una zona chill out exclusiva

✅ Relajarse sin salir de casa

✅ Vivir el exterior como una extensión natural de la vivienda

Un auténtico privilegio difícil de encontrar en el mercado.

🍽 Cocina

La cocina se encuentra tal y como se muestra en las fotografías, lista para su uso, con posibilidad de adaptación según necesidades.

✨ Calidades y detalles

✅ Calefacción de gasoil

✅ Contador individual de calefacción, permitiendo control del consumo

✅ Ventanas diseñadas para integrar las terrazas en la vivienda

✅ Posibilidad de modificar los cerramientos

✅ Vivienda con carácter arquitectónico singular

🏢 Edificio

El edificio ha sido galardonado con un premio de arquitectura, lo que refuerza su valor y singularidad.

Además:

✅ Tejado reformado en abril de 2025, aportando tranquilidad a largo plazo

✅ Ascensor con acceso restringido mediante llave a la planta ático (4ª planta)

✅ Acceso directo al garaje

💰 Comunidad y gastos

💰 Cuota de comunidad: 150 €/mes

Incluye:

✅ Agua

✅ Parte de la calefacción (60% cubierto por la comunidad)

✅ Servicio de mantenimiento

✅ Ascensor y zonas comunes

El 40% restante de calefacción es individual, lo que permite optimizar el consumo.

🚗 Garaje

Incluye plaza de garaje en el mismo edificio, con acceso directo, aportando comodidad y seguridad.

📍 Ubicación

Situado en Santa Marta de Tormes, una de las zonas más demandadas del entorno de Salamanca.

✅ A pocos minutos de Salamanca

✅ Zona residencial consolidada

✅ Servicios, comercios y transporte

✅ Entorno cómodo y bien conectado

Ideal para quienes buscan tranquilidad sin renunciar a la cercanía de la ciudad.

✨ Conclusión

No es solo un ático.

Es una vivienda que combina:

✅ Espacios exteriores únicos

✅ Piscina privada

✅ Privacidad y exclusividad

✅ Diseño arquitectónico diferencial

✅ Ubicación estratégica

✅ Seguridad en el edificio (tejado renovado y mantenimiento incluido)

Una oportunidad difícil de encontrar en el mercado actual.

🔑 Información adicional

Disponemos de otra vivienda en el mismo edificio con características superiores.

📞 Consúltenos para ampliar información o concertar visita privada.

Características principales

🏡 Tipo de inmueble: Ático

📐 Terrazas: 2 (30 m² aprox.)

🏊 Piscina privada en terraza

🛏 Dormitorios: 4

🚿 Baños: 2

🔥 Calefacción: gas natural (contador individual)

🏢 Planta: 4ª (ático)

🔐 Ascensor con acceso mediante llave

🏗 Edificio premiado en arquitectura

🏠 Tejado reformado en 2025

🚗 Garaje en el mismo edificio con acceso directo

💰 Comunidad: 100 €/mes (incluye agua y 60% calefacción)

✨ Estado: listo para entrar / adaptable

Características
Precio Venta 215.000 €
Precio/m² 1.792
Gastos de comunidad 100 €
I.B.I. 350 €
Año de construcción 1998
Construidos 120 m2
Dormitorios 4
Baños 2
Amueblado
Cocina Amueblada
Calefacción Calefacción individual - Gasoil
Terraza
Altura/Planta 4
Estado Nuevo
Tipo de suelo Baldosa
Ascensor
Piscina privada
Garaje
Adaptado
Calificación Energética En trámite
Luz
Agua
Acceso discapacitados
Vídeos
Ubicación
Escalas de eficiencia



Contacta con tu asesor
José Luis Díaz (Venta)
Contáctanos

Si deseas más información sobre esta propiedad, por favor, rellena el formulario.

 Sí, he leído y/o acepto las Condiciones de uso y la Política de privacidad
Agencia asociada a la Asociación Inmobiliarias de Salamanca